- 行业新闻 您现在的位置 :网站首页 -- 新闻资讯 -- 行业新闻
-
建筑机电安装管线排布图文全解析-闽熠福建抗震支架
新闻来源于:kehu 发表于:2018/6/7 22:32:51 浏览2388次 文章摘要:闽熠福建抗震支架,闽熠厦门抗震支架,闽熠福州抗震支架,闽熠南平抗震支架,闽熠三明抗震支架机电管线布置的重要性
机电专业中,管线布置包括:给排水管道、消防喷淋管、消防气体管、空调送排风管、空调冷冻水管、冷却水管、电缆桥架、线槽、工艺管线等的平面布置及竖向布置;机电管线布置在设计图纸中都是分专业、分系统进行管线绘制,专业间各自为政、条块分割,加上管线复杂、交叉繁多,缺乏统一规划,缺乏空间合理分配,当在现场施工中必定会造成管线布置方面的冲突,导致安装高度过低,为日后维修带来相当大困难和存在着安全隐患。施工单位具有现场第一手资料,根据现场情况,结合自身解决施工技术方面经验,投入足够专业技术的技术人员,通过施工前绘制机电管线综合布置图及相关的控制工作,才能有效地控制好设备、管道、电缆桥架等在空间的排列走向各专业管线,保证施工的可行性、美观性及生产使用中的实用性。
机电管线深化设计的必要性
(1)合理布置各专业管线,最大限度的增加建筑使用空间,减少由于管线冲突造成的二次施工。
(2)综合协调机房及各楼层平面区域或吊顶内各专业的路径,确保在有效的空间内合理布置各专业的管线,以保证吊顶的高度,同时保证机电各专业的有序施工。
(3)综合排布机房及各楼层平面区域内机电各专业管线,协调机电与土建、精装修专业的施工冲突。
(4)确定管线和预留洞的精确定位,减少对结构施工的影响
(5)弥补原设计不足,减少因此造成的各种损失。
(6)核对各种设备的性能参数,提出完善的设备清单,通过供货商或厂家核定各种设备的订货技术要求,尽快将数据传达给设计以检查设备基础、支架是否符合要,协助结构设计绘制大型设备基础图。
(7)合理布置各专业机房的设备位置,保证设备的运行维修、安装等工作有足够的平面空间和垂直空间。
(8)综合协调竖向管井的管线布置,使管线的安装工作顺利地完成,并能保证有足够多的空间完成各种管线的检修和更换工作。
1
管线综合排布原则
1.总体原则:风管布置在上方,桥架和水管在同一高度时候,水平分开布置,在同一垂直方向时,桥架在上,水管在下进行布置。综合协调,利用可用的空间。
2.避让原则:有压管让无压管,小管线让大管线,施工简单的避让施工难度大的。
3.管道间距:考虑到水管外壁,空调水管、空调风管保温层的厚度。电气桥架、水管,外壁距离墙壁的距离,最小有100mm的距离,直管段风管距墙距离最小150mm,沿结构墙需90°拐弯风管及有消声器、较大阀部件等区域,根据实际情况确定距墙柱距离,管线布置时考虑无压管道的坡度。不同专业管线间距离,尽量满足现场施工规范要求。
4.考虑机电末端空间
整个管线的布置过程中考虑到以后送回风口、灯具、烟感探头、喷洒头等的安装,合理地布置吊顶区域机电各末端在吊顶上的分布,以及电气桥架安装后放线的操作空间及以后的维修空间,电缆布置的弯曲半径不小于电缆直径的15倍。
5.垂直面排列管道布置:
注:上述为管线布置基本原则,管线综合协调过程中根据实际情况综合布置,管间距离以便于安装、检修为原则。
2
机电管线布置工作的程序
1.机电管线图纸综合布置
将各专业的管线设计图纸集中表示在一张图中,可直观地反映建筑内部所有机电设备管道的走向布置。特别是在大型项目里,便于各专业统一安排组织各部位的施工作业,对潜在的问题,提前反映协调解决,具有较强的可操作性和预见性。
(1)施工前汇集各专业系统图纸,合成综合管线布置图。
(2)施工前,投入足够专业技术的技术人员,绘制各楼层的机电管线综合布置图及相关的控制工作,包括内容:给排水管道、消防喷淋管、消防气体管、空调送排风管、空调冷冻水管、冷却水管、电缆桥架、线槽、工艺管线等的平面布置及竖向布置。
2.机电管线图纸综合的具体做法
(1)保证必要的人员:项目部应安排2个人在一个阶段内专职做机电管线图纸综合。同时,为了加强机电管线图纸综合的力量,也为了及时把图纸综合的成果应用到施工现场,主管现场的机电管理人员也直接参与到了机电管线图纸综合的工作当中。
(2)配备各专业图纸:不仅配备了通风空调、给排水、强弱电图纸,同时还配备了建筑施工图纸和结构施工图纸。参与综合图纸工作的人员都有深刻的体会:不看懂结构施工图纸,便不知道梁的高矮及墙、板的厚度,因而就不可能把结构洞预留好。不看懂建筑图纸,便不知道墙壁装修做法的厚度、吊顶的位置、高度,同样搞不好机电管线的预留预埋及安装。
(3)收集相关设备尺寸:如空调机组、新风机组尺寸(用于机房、走道布置的核验)、电气箱柜尺寸(用于强弱电井、机房等的布置)、消防声光报警器的安装要求(用于决定是否预留模块接线盒)、卷帘门各部尺寸(用于电气预埋和土建预埋铁的施工)、风幕各部尺寸(用于电气预埋)等。
(4)具体步骤:
a.配备并读懂各专业图纸。
b.把给排水、消防及喷淋水、空调水、强电、弱电、消防电气管线用不同的色线叠加绘制在通风空调图纸上。之所以这样做,是因为通风空调图纸图形复杂,不宜往其他专业图纸上复制。
c.找出管线密集的地方和风水电的干线路由,有代表性地做出相应的剖面图、立面图(尤其读懂土建专业图纸),如布置有困难,则设法予以调整。
(5)遵循一个原则:做机电管线图纸综合的人员在读图、进行管线设备空间布置、对原设计进行调整时,思考问题的深度必须“达到干活的深度”——就是既要考虑施工工艺问题,还要考虑到工人的安装操作空间和将来的维修空间。
(6)各管线布置密集的部位截取关键点,绘制初步机电管线剖面布置图在机电管线综合布置图的基础上能够一目了然的呈现管线及设备密集的部位,在以往的经验中通常的位置包括:走廊通道,设备机房、机电管线竖井等关键位置。局部综合布线图及初步机电管线剖面布置图的绘制,能针对性地反映建筑内部(处)机电设备管线的平面布置和空间布置。在提出综合图要求后,结合各专业管线的布置、走向,在平面综合布置的基础上进行空间管线的布置,其中必须考虑到设备安装和管道连接的各方面要求,在尽可能保证吊顶天花高度和便于维修保养的前提下,完成接下来的管线的综合布置调整。
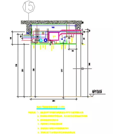
(7)进行机电管线调整定位,确定剖面设计 在初步机电管线剖面布置图的基础上进行综合布置的调整定位,各机电系统管线布置总体统筹顺序为:
1)各系统管线避让布置原则:①小管让大管;②有压管让无压管;③无保温管让保温管;④电气管线位上方,风管位下方;⑤电气、水管分井布置;⑥强电、弱电分槽、井布置;
2)提高观感布置,为了给业主创造较高的建筑空间,还应尽量把管线尽量提高,以留下尽可能高的净高,提高建筑的观感;如在协和医院干保基地配建工程中,机电安装工程按下列要求进行管线综合布置:
① 雨水、污水、排水、冷凝水系统的管道等有排水坡度要求的管道,严格按设计图纸的要求的安装尺寸、标高和流体走向进行布置;通风(包括防排烟)与空调风管紧贴消防喷淋管道安装(需要预留保温层空间),当风管与消防喷淋头位置重叠时,按消防规范要求设置喷淋头与风管的间距或将消防喷淋头引至风管底部安装,并避开风口位置;
② 考虑电气系统功能变化较频繁(如电缆、电缆的增减等)和系统检修维护的方便及安全性,将电气桥架、线槽设置于水管上位或主干风管上方,以便进行电缆的敷设和线路维护;
③ 水管(包括给水、排水、冷冻水、冷却水、冷凝水管道等)与电气桥架、线槽平行安装,则安装间距应大于100mm,在水管与电气桥架、线槽安装位置的交叉处,电气桥架、线槽爬升至管道上方安装。喷淋主管宜安装在风管的上方,与上下喷淋头支管连接根据现场实际情况进行处理。
④ 现场安装实际近照
注:由于消防、水暖及排水管线布置不合理、不紧凑,从而造成吊顶上部空间的浪费,给管线装修,特别给是吊顶造型带来困难;如上图5:消防管、暖管与排水交叉处,管线布置失败,最后重新拆除二次安装,既浪费成本,又浪费工期,因此安装工程中一定要重视其它管线与排水管线交叉处管线的综合布置。
(8)电缆桥架、管线支架整合
共用电缆桥架断面设计形式应灵活、方便,易于实施,在不同区段过渡时,应充分考虑土建空间特点和电缆弯曲半径要求。对于共用电缆支架形状、尺寸及支架内部空间划分,须有严格规定,细节清楚。采用共用管道和电缆支架方案。该方案整合了强弱电的电缆桥架、各专业管道支架,将吊顶内所有的管线桥架全部纳入共用架范围,统一设计,统一选型,为设备施工、系统设备安装提供了极大的方便,提高了电气安装质量和效率。采用联合支架可以减少支架的拆改工作量,最大限度地降低工程成本。
3机电管线图纸综合需注意的问题
(1)机电管线图纸综合在管理上应更主动,时间上应尽量往前提。以免跟着结构施工搞得很紧张,因而降低图纸综合的质量。
(2)机电管线图纸综合的成果,应组织好层层交底、答疑,尤其是有些细部工艺要求。最好是一竿子插到底,以免中途截留、信息传递失真。交底的人员范围既应包括施工人员,还应包括施工管理人员、质检人员。本工程就发生过不按综合留洞图预留孔洞的。
(3)各级、各专业管理人员及施工人员应改变以往各自为政、你干你的、我干我的、互不通气的倾向。提倡“照顾左邻右舍”、“与人方便、与己方便”的管理理念,提倡矩阵式管理方式,把机电管线图纸综合的工作贯穿于整个施工过程中。以减少拆改,把机电安装工作做到尽善尽美。
装修项目机电管道综合平衡及末端点位布置3
管线平衡的分类:
1、整个剖面综合平衡
2、局部区域管线平衡
整个剖面平衡重点:
1、 结构尺寸复核及标注
2、 装饰标高、造型标注
3、 主要管线的标高及位置。
4、 机电末端设备的安装空间。
5、 机电管线支管的走向及标高。
6、 主龙骨的安装空间及位置。
7、 检修空间、管线敷设空间。
8、 条件容许的前提下需深化配套管线平衡的管线平面布置图。
平衡时需注意的机电规范及需注意事项:
1、 强弱电桥架并行敷设时净距离150以上。
2、 桥架宜敷设在水管上方。
3、 严禁在桥架上方平行敷设水管。
4、 走道及集中管线部位应考虑施工及检修空间。
5、 平衡时管线下方应考虑机电末端设备安装空间。
6、 装饰主龙骨排版时应避开机电末端设备位置。
7、 桥架和水管宜离开300以上。
8、 有出风口风管的应注意风管和风口的位置,原则上应在同一直线。
9、各系统(水、电、风)支架需独立设置,不能共用。
装饰综合吊顶平面布置图平衡:
平衡原则:
1、 所有吊顶机电点位必须在平面布置图上体现。
2、 机电点位布置必须符合规范要求。
3、 同一差不多轴线位置的机电点位尽量做到一条线上。
4、 走廊机电末端点位没什么特殊要求,居中一条直线布置。
5、各机电点位位置尽量等距离设置。
吊顶综合平衡布置图图例:
综合吊顶布置图平衡规范:
1、喷淋布置规范
2、烟感的设置规范
电机点位墙面点位平衡:
1、机电末端点位安装高度及规范要求
消防警铃安装高度为下口离地坪2.2米;
两个警铃之间不大于25米;
最后一个警铃距墙不大于12.5米;
区域火灾报警控制器或火灾报警控制器安装在墙上时,其底边距地面高度宜为1.3~1.5m,其靠近门轴的侧面距墙不应小于0.5m,正面操作距离不应小于1.2m。
设有手动火灾报警按钮、消火栓按钮等处宜设置电话塞孔。电话塞孔在墙上安装时,其底边距地面高度宜为1.3~1.5m
一般插座安装高度为300,除图纸有特殊要求外;
开关安装高度一般为1300.除图纸有特殊要求外;
室内消火栓的布置间距应根据行走距离计算,并符合下列规定:
1.2支水枪充实水柱同时到达任何部位时,消火栓的间距不应大于30m;
2.1支水枪充实水柱同时到达任何部位时,消火栓的间距不应大于50m。
2、墙面机电点位平衡重点
具备条件:现场尺寸已复核、装饰图纸排版符合现场。
所有墙面机电点位必须在图纸中统一合理布置及显示。
原则上机电点位在块状类装饰材料中应居中设置,有特殊要求的机电点位除外。
机电所有末端设备坐标、标高应在图纸中全部标注。
3、墙面机电点位深化示例图
报送相关方审批并实施
(1)机电系统管线综合布置图。包括了:
①各层机电综合管线图、各管线密集区域剖面图;
②全面综合管线、机房的布置图、各区剖面图;
③泵房立面图、剖面图、设备管道安装大样图;
④各配电房桥架斜视图、准确的设备安装平面图、立面图;
⑤冷冻机房的管线走向斜视图、设备安装大样图;
⑥其他设备机房的管线布置图;
⑦各配电箱/柜的立面布置图。
(2)因为管线综合布置图涉及到管道偏移及局部修改,并对后期施工布置及施工流程影响较大,故绘制后的管线综合布置图需要经过业主、监理、设计院各方的认可或批准,方可执行。
机电管线的综合布置工作不仅解决了各系统管线之间布置距离不合理而造成的施工安装和设备调试的困难,检修维修空间,避免了发生管线故障时花费大量的时间和人工进行恢复;同时解决了在保证功能的前提下走廊吊顶内管道的标高和位置问题,避免交叉,又要配合装修的实用及美观的要求;在一些大型综合建筑的实际工程运用中取得了良好的效果。
上一篇:中建、中交、中电建、中能建、中铁、中铁建、中冶公司-闽熠抗震支架[ 返回 ]
下一篇:没有了






