- 公司动态 您现在的位置 :网站首页 -- 新闻资讯 -- 公司动态
-
[ 返回 ]
闽熠抗震支架- 机电工程抗震支吊架安装工艺标准
新闻来源于:kehu 发表于:2018/6/7 22:18:45 浏览1961次 文章摘要:福建抗震支架闽熠,厦门抗震支架闽熠前 言
根据原国家计委计标[1986]1649号文《关于请中国工程建设标准化委员会负责组织推荐性工程建设标准试点工作的通知》和《建筑机电工程抗震设计规范》(GB50981-2014)的要求,抗震支吊架是目前建筑机电设备用于抵抗地震作用力而增设的抗震支撑系统。为便于工程安装人员更好地了解和掌握该系统的工艺标准,特此编制此标准。
一 编制依据
1.《建筑机电工程抗震设计规范》(GB50981-2014)
2.《建筑抗震设计规范》(GB50011-2010)
3.《非结构构件抗震设计规范》(JGJ339-2015)
4.《建筑机电设备抗震设计规范》(CJ/T 476-2015)
5.《管道支吊架第一部分:技术规范》(GB/T17116.1-1997)
6.《装备式管道吊挂支架安装图》(03SR417-2)
7.《室内管道支架及吊架》(03S402)
8. 北京市龙达成品支吊架安装系统图册
二 适用范围
抗震设防烈度为6度及6度以上地区的建筑机电工程必须进行抗震设计(含地下综合管廊);抗震支吊架产品的质量应符合现行行业标准《建筑机电设备抗震支吊架通用技术条件》;抗震支吊架安装及验收除应符合本规程外,尚应符合国家现行有关标准的规定。
1 为保证建筑机电工程在地震作用下,仍能运行,对于吊杆长度不大于300mm的吊杆悬挂管道,建议进行抗震支架的补强;
2 抗震设防管线内容:
2.1国标强条必须严格执行:
防排烟风道、事故通风风道及相关设备应采用抗震支吊架
(注:含排烟,消防补风系统,消防前室正压送风系统,管线及风机相关设备)
2.2国标非强条但应严格执行:
2.2.1管径大于等于DN65的生活给水、热水及消防管道,当采用吊架、支架或托架固定时,应按本规范第8章的要求设置抗震支吊架;
注:国外消防跟防排烟这两个系统严格执行
2.2.2重力大于1.8KN的空调机组、风机等设备当采用吊装时应设置抗震支吊架
2.2.3管径大于或等于25mm的燃气管道均应进行抗震设计;
2.2.4 管径不小于DN60mm的电气配管及重力不小于15N/m的电缆梯架、电缆槽盒、母线槽均应进行抗震设防;
2.2.5矩形截面面积大于等于0.38m²和圆形或直径大于等于0.7m的风道可采用抗震支吊架;
三 基本规定
1. 抗震支吊架材料、规格、要求均应符合现行行业标准《建筑机电设备抗震支吊架通用技术条件》CJ/T476的规定,并附有检测报告和出厂合格证。
2. 抗震支吊架的所有构件均应采用成品构件,除C型槽钢、全螺纹吊杆可以进行现场切断外,不得对其它产品进行现场加工。
3. 抗震连接构件及管道连接构件材料厚度不应小于5mm,表面宜采用锌铬涂层、热浸镀锌等方式处理。
4. 锚栓性能应符合现行行业标准《混凝土用膨胀型、扩孔型建筑锚栓》JG160的规定,锚栓的选用应符合现行行业标准《混凝土结构后锚固技术规程》JGJ 145的规定。
5. 抗震连接构件与建筑混凝土结构体连接的锚栓,应采用具有机械锁键效应的后扩底锚栓,不得使用膨胀锚栓。抗震连接构件与钢结构连接,应采用专用夹具进行连接。
四 抗震支吊架形式
机电系管线抗震支吊架分为:管道抗震支吊架(单管,门型,桥架抗震支吊架,风管抗震支吊架。
1 水平管线
1.1 承受的地震力分形式
支架形式
支架图例
侧向抗震支吊架
支架形式
支架图例
纵向抗震支吊架
支架形式
支架图例
双向抗震支吊架(侧向+纵向)
2 垂直管线:四向抗震支吊架
支架形式
支架图例
垂直管道抗震支吊架
五 抗震支吊架一般规定
1 抗震支吊架的最大间距 表---1
水平管道类别(新建工程)
抗震支吊架最大间距(m)
侧向
纵向
给水管、消防管、喷淋管、空调水管
刚性连接金属管
12.0
24.0
柔性连接金属管、非金属管及复合管
6.0
12.0
燃气、热力管道
燃油、燃气、高温热水管、蒸汽管、医用气体、真空管、压缩空气管、及其他有害气体管道
6.0
12.0
通风及排烟管道
刚性材质
9.0
18.0
非金属材质
4.5
9.0
电线套管、电缆桥架、电缆托盘、电缆槽盒
刚性材质
12.0
24.0
非金属材质
6.0
12.0
注:改建工程最大抗震加固间距为上表数值的一半。
2 抗震支吊架设计的一般规定(具体的专业对应的支架,在后面各专业分项中具体细化分析)
3 侧向抗震支吊架的规定:
3.1 每段水平直管段应在两端应设置有侧向抗震支吊架
3.2两个侧向抗震支吊架距离大于表4.1中规定的最大设计间距,应依次增设侧向抗震支吊架,来满足 4.1中的间距要求
3.3每段水平直管段末端的1.8米范围内应设置纵向抗震支吊架
3.4水平直管段过渡到不需要抗震支撑的另一尺寸的管段是,过渡点看成是终点,应在过渡点安装侧向抗震支吊架。
3.5沿墙敷设的管道当设有入墙的托架、支架且管卡能紧固管道四周时,可作为一个侧向抗震支吊架
4 纵向抗震支吊架的规定:
4.1每段水平直管段应至少设置一个纵向抗震支吊架。
4.2两个纵向抗震支吊架距离大于表1中规定的最大设计间距,应依次增设纵向抗震支吊架,来满足表1中的间距要求。
4.3每段水平直管段末端的12米范围内应设置纵向抗震支吊架。
5 立管的抗震支吊架设置规定:
5.1当立管长度大于1.8m时,应在其顶部及底部设置四向抗震支吊架,当立管的长度大于7.6m时,应在中间加设四向抗震支吊架,是立管的两个四向抗震支吊架的间距不得大于7.6m。
5.2连接立管的水平管道应在靠近立管的0.6m范围内设置第一个抗震支吊架;
5.3与水平管段相连的立管,靠近接头处的四向抗震支吊架可视为与其连接的水平管段的一个双向抗震支吊架
5.4当立管通过套管穿越结构楼层时,因套管可限制立管水平方向的位移,可作为立管的一个四向抗震支吊架
5.5 刚性连接的水平管道,两个相邻的抗震支吊架间允许纵向偏移值。应符合下列规定:见表—2
抗震支吊架间允许纵向偏移 表----2
管径mm
最大偏移量
0.25g
0.5g
1.0g
32-50
1.2m
0.6m
0.3m
65-75
2.4m
1.2m
0.6m
100-125
3m
1.8m
0.9m
150
3m
3m
1.5m
200
3m
3m
2.1m
250-300
3m
3m
2.7m
350-600
3m
3m
3m
5.5.1 水管及电线套管不得大于最大侧向支吊架间距的1/16。
5.5.2 风管、电缆梯架、电缆托盘和电缆槽盒不得大于其宽度的两倍。
5.5.3对于水平单水管抗震支架,抗震斜撑直接作用于管线,当其在转弯处0.6m范围内设置侧向抗震支吊架,其可作为另一侧管线的一个纵向抗震支吊架,可承受另一侧6m管线的纵向地震力。
5.6抗震支吊架的构造规定:
5.6.1抗震支吊架,承受压力的杆件长细比应小于等于200,只承受拉力的杆件长细比应小于等于300。
5.6.2抗震支吊架的斜撑与吊架的距离不得大于0.1m
5.6.3门型的抗震支吊架的设置应符合下列规定:
1) 门型抗震支吊架至少应有一个侧向抗震支撑或两个纵向抗震支撑(对于风管抗震支架,当其风管宽度超过1m时,宜使用两个侧向支撑);
2) 同一承重吊架悬挂多层门型吊架,应对承重吊架分别独立加固并设置抗震斜撑;
3) 门型抗震支吊架侧向及纵向斜撑应安装在上层横梁或承重吊架连接处;
5.7所有抗震支吊架应和结构主体可靠连接,安装抗震支架的锚栓只可固定在剪力墙,梁或钢结构梁,承重柱上,严禁将斜撑安装到砖墙一类的建筑结构上(砖墙容易被应力集中所破坏,使锚栓松动)。
5.8侧向、纵向抗震支吊架的斜撑安装,垂直角度宜为45°,且不得小于30°。
5.9抗震支吊架的产品主要技术规定:
5.9.1抗震支吊架在地震中应对建筑机电工程设施给予可靠的保护,承受来自任意水平方向的地震作用。所有的构件应采用成品构件,连接紧固件的构造应便于安装。
5.9.2锚栓应采用具有使用于混凝土开裂区的带机械锁键效应的扩孔型机械锚栓(包括自切底和后扩底两种扩底方式)锚栓钢材至少应采用8.8级,并且采用热浸镀锌的表面防腐工艺,在裂缝宽度不小于0.3mm下能继续使用,锚栓的设计值应按开裂混凝土条件取值,能够提供权威机构的开混凝土认证报告(开裂混凝土工况下的抗拉和抗剪承载力检测报告),并能提供权威机构的防火测试报告。
5.9.3 抗震支吊架系统由C型成品槽钢、专用抗震连接件、抗震管卡、扩底锚栓或钢结构梁夹组成,抗震连接件与槽钢通过机械连接可随意调节抗震支吊架的尺寸、高度、角度。抗震支吊架现场做到不焊接;且专用抗震连接件板材厚度不小于6mm,应一次冷弯成型,不宜焊接。
5.9.4抗震支吊架和U型槽钢内缘须有齿牙,且齿牙深度不小于0.9毫米,并且所有配件的安装依靠机械咬合实现,严禁任何配件的摩擦作用来承担受力的安装方式,以保证整个系统的可靠连接,槽钢与槽钢锁扣的连接应能抵抗200万次的疲劳荷载,并提供相应的疲劳检测报告和槽钢抗卷边拉力、抗滑移报告。
5.9.5抗震支吊架系统须提供整体抗震支吊架的防火测试报告。抗震支吊架系统(含水管、风管、桥架三个系统)须提供地震模拟测试报告,且模拟实验不得低于8度(0.3g)罕遇地震工况。
5.9.6抗震支吊架槽钢应采用热浸镀锌防腐措施(锌层厚度不低于55um)以满足抗震支吊架的耐久性。
5.9.7全压螺杆材质采用国家标准《碳素结构》GB/T 700规定的Q235钢,螺杆强度不低于8.8级,表面电镀锌防腐,锌层厚度不低于5um,根据实际工况可提供热浸镀锌材质,镀锌层厚度不低于55um。
5.9.8外六角螺母材质应采用国家标准《碳素结构》GB/T 700规定的Q235钢,螺母强度不低于8.8级,振幅0.1d,频率10HZ,振动1200次,紧固1次及5次拆装后,参与轴力与初始轴力之比不低于70%,具有国家级的防松测试报告。为避免人为因素导致紧固力过小或过大,须采用拧断双头螺栓,达到固定的扭矩时,扭力头自动断裂,保留的四方头可保证螺栓的正常拆装。
5.10抗震支吊架的力学受力计算说明
5.10.1 水平地震标准值的采用等效侧力法计算
αek=γηξ1ξ2αmax
F=αek G
式中: F-沿最不利方向施加于机电工程设施重心出的水平地震作用标准值
G-为非结构构件的重力;
αek-为水平地震力综合系数;
γ-非结构构件功能系数(见表1)
η -非结构构件类别系数(见表2)
ξ1-状态系数:对支撑点低于质心的设备和柔性体系
宜取2.0,其余情况取1.0
ξ2-位置系数:建筑顶点宜取2.0,底点取1.0,沿高度线性分布
αmax :地震影响系数最大值(见表3)
当αek计算值小于0.5时,按0.5取值;
5.10.2 抗震设防烈度为6度地区的甲类建筑机电工程以及6度以上的建筑机电工程必须对地震作用进行计算,其中抗震支撑节点的验算必须包含以下内容:
1) 逐点划分各抗震支吊架影响区内满水管路重力荷载范围(支撑点影响区涵盖该支撑点载荷分配计算中包括的所有管路,且基于所有不同支撑点的对称式布局),并计算建筑机电工程设施水平地震作用标准值F;
2) 斜撑及抗震连接构件的强度验算;
3) 吊杆的强度验算;
4 )斜撑及吊杆的长细比验算;
5)各锚固体的强度验算,包括斜撑的锚栓、吊杆的锚栓等;
6) 管束的强度验算。
并出具抗震支吊架节点计算书
5.11针对特殊项目的特殊抗震支吊架的补充说明:
5.11.1 钢结构建筑里的抗震支吊架
5.11.2其他特殊抗震支吊架形式
六 抗震支吊架的安装要求
1给排水系统
1.1管径大于等于DN65的生活给水、热水及消防管道,当采用吊架、支架或托架固定时,应按本规范第8章的要求设置抗震支吊架;
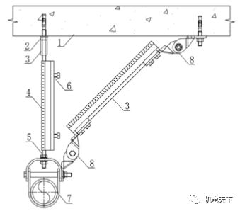
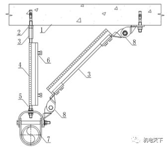
1.单管侧向抗震支吊架构造形式
1- 结构体;2-抗震锚栓;3-六角连接器;4-C型槽钢
5-长螺杆;6-加劲装置;7-管道;8-抗震连接构件
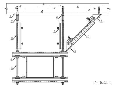
2.单管双向抗震支吊架构造形式
1-结构体;2-抗震锚栓;3-抗震连接构件;4-C型槽钢
5-六角连接器;6-长螺杆;7-加劲装置;8-管道
1.2给排水系统的抗震支架构件规格
管道规格
吊杆规格
单侧撑规格
双侧撑规格
其他
DN65
M12外包41槽钢
41*41*2.0
DN80
M12外包41槽钢
41*41*2.0
DN100
M12外包41槽钢
41*41*2.0
DN125
M12外包41槽钢
41*41*2.0
DN150
M12外包41槽钢
41*41*2.0
抗震底座
DN200
M12外包41门型
41*41*2.0
抗震底座
DN250
M12外包41门型
41*41*2.0
抗震底座
DN300
41槽钢门型
41*41*2.0
抗震底座
注:吊高2米以内斜撑都采用41*41*2.0大于2米采用柔性钢丝绳。
2 通风调系统
1.风管侧向抗震支吊架构造形式
1-结构体;2-六角连接器;3-C型槽钢;4-U型扣垫
5-长螺杆;6-抗震锚栓;7-加劲装置;8-抗震连接构件
2.风管双向抗震支吊架构造形式
1-结构体;2-抗震锚栓;3-抗震连接构件;4-C型槽钢
5-U型垫片;6-长螺杆;7-六角连接器;8-加劲装置
2.1通风系统管道抗震支吊架构件规格
风管规格mm
吊杆规格
横担规格
斜撑规格
其他
抗震连接件形式
1250以下
M12外包41槽钢
41*41*2.0
41*41*2.0
1250- 1500
M12外包41槽钢
41*52*2.5
41*41*2.0
双支撑
1500-2200
M12外包41槽钢
41*72*2.75
41*41*2.0
双支撑
2200-3000
M12外包41槽钢
41*52D*2.5
41*41*2.0
双支撑
抗震底座
3000以上
M12外包41槽钢
41*52D*2.5
41*41*2.0
双支撑
抗震底座
注:D为双倍杆件;吊高2米以内斜撑都采用41*41*2.0,大于2米采用柔性钢丝绳,其他非注明抗震连接件形式均可采用抗震铰链。
3建筑电气系统管道桥架
1.电管侧向抗震支吊架构造形式
1- 结构体;2-抗震锚栓;3-六角连接器;4-C型槽钢
5-长螺杆;6-加劲装置;7-管道;8-抗震连接构件
2.桥架侧向抗震支吊架构造形式
1-结构体;2-六角连接器;3-长螺栓;4-C型槽钢
5-U型垫片;6-抗震锚栓;7-加劲装置;8-抗震连接构件
3.桥架双向抗震支吊架构造形式
1-结构体;2-抗震锚栓;3-抗震连接构件;4-C型槽钢
5-长螺杆;6-六角连接器;7-加劲装置
3.1 电气桥架等抗震支吊架构件规格
桥架规格
吊杆规格
横担规格
斜撑规格
其他
300*100及以下
M12外包41槽钢
41*41*2.0
41*41*2.0
抗震底座
300-500*200
M12外包41槽钢
41*52*2.5
41*41*2.0
抗震底座
600*200
M12外包41槽钢
41*52*2.5
41*41*2.0
抗震底座
800*200
M12外包41槽钢
41*72*2.75
41*41*2.0
抗震底座
800以上
M12外包41槽钢
横担根据重力支架荷载选
41*41*2.0
抗震底座
注:吊高2米以内斜撑都采用41*41*2.0,大于2米采用柔性钢丝绳。






